Schlagwort: Bauarbeiten
-
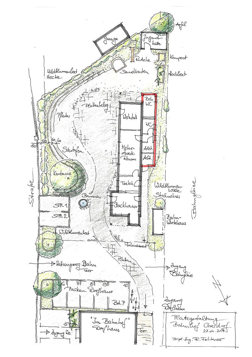
Nehmt (Euch einen) Platz. Dein Sitzstein im Bahnhofgarten
IG OMa verkauft Sitzstein-Anteile fürs nächste Großprojekt „Nehmt (Euch einen) Platz!“ Unter diesem Motto bietet die Interessengemeinschaft Oberdorf-Martinszell noch bis Freitag, 15. September die Gelegenheit, sich eine ganz persönliche Sitzfläche […]
-
Alle bauen – wir auch!
Großbaustelle in der Oberdorfer Bahnhofstraße. Und während die einen Kanal- und Wasserrohe verlegen, kümmern wir uns um den Bahnhofsgarten!
